Co-Work Office Building

This existing building is located near the Lachine Canal in Montreal. The goal of this project is to create a contemporary working environment within a historic building. The Wellington Swithching Station will now become a Co-Work Office Building.
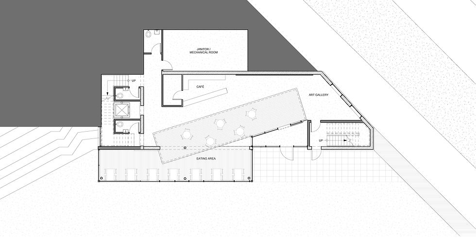
The concept of this project is to keep the original purpose of the old building which was a control tower for the trains. The research to achieve this concept was focused on the old train tracks path on the island of Montreal. Three guidelines emerged from this path. They are marked as hidden lines on the building of the site plan. The third one is on the horizontal axis. By following these guidelines, one can find on each floor two boxes or a space implying a box. The horizontal box is also found on each floor. The boxes are the same size as a train car, so users who have already traveled by train can then feel the presence of the train. In each of its boxes, there is the main program, for example, a café, meeting rooms, a library, etc. The boxes are made out of glass in order to contrast with the stone of the existing building. Finally, each opening in the existing wall of the building is lower than the height of the ceiling so the occupants feel as if they were coming in and out. One can then feel the presence of the historic building.


